515 Hinton Street, Lebanon, TN 37090
- 4 beds |
- 4 baths |
- 2,042 sqft
Town Home
Built in 2025
—— sqft lot
2 car garage
$171/sqft
Listed 10 days ago
Property Description
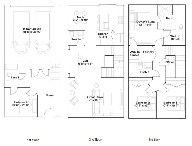
One Lebanon Place is an exciting new master-planned community redeveloped from the Lebanon Outlet Mall, with restaurant, cafe, and retail space, in addition to green space, playground, dog park, pavillion, and grills. These brand new 2-car garage townhomes offer the convenience and lifestyle you've been looking for! This Westbrook floorplan features an enormous great room and spacious loft in addition to 4 bedrooms, 3 full baths, plus a half bath. The home is designed with an open concept kitchen with lots of cabinet/countertop space and a huge island with 42" shaker style cabinetry, quartz tops, tile backsplash, and stainless steel kitchen appliances. A luxurious primary suite with ceramic tile floor, executive height cabinets, double vanity and quartz top, and oversized walk-in ceramic tile shower. LVP flooring in main living areas, LVT in secondary baths and laundry. Luxurious features throughout! Ring doorbell, Schlage keyless entry, Honeywell WIFI thermostat, and more! 2" faux wood blinds on operable windows and stainless steel refrigerator included!
- Listing Status:
- Active
- Date Added:
- October 3, 2025 at 05:00AM
- Listing Office:
- Lennar Sales Corp. : 6154768526
- Listing Agent:
- Nathaniel Parrow : 6154768526
- MLS ID:
- 3011213

- Parking: Garage Door OpenerGarage Faces RearParking spaces: 2
- Roofing: Shingle
- General: Three Or More
- HOA Amenities: Dog ParkPlaygroundUnderground UtilitiesMaintenance StructureMaintenance GroundsInsurance175.0Monthly
- Originating MLS: realtrac
- County: Wilson CountyTN
- Utilities: Water Available
- Water: Public
- Sewer: Public Sewer
- Source: realtrac
This listing courtesy of Nathaniel Parrow, Lennar Sales Corp.
Monthly Payment
- Principal & Interest $
- Property Taxes $
- Home Insurance $
- VA Funding Fee $
Location
Schools Nearby
Byars Dowdy Elementary School
904 Hickory Ridge Rd, Lebanon, TN, 37087
Grades PK-5
2.07 miles away
Winfree Bryant Middle School
1213 Leeville Pike, Lebanon, TN, 37090
Grades 6-8
1.85 miles away